Bekanntmachung über den Erlass des Bebauungsplans
Der Bau-, Umwelt- und Energieausschuss vom Markt Dinkelscherben hat in seiner Sitzung am 09.02.2021 den o.g. Bebauungsplan in der Fassung vom 09.02.2021 als Satzung beschlossen.
Der Satzungsbeschluss wird hiermit gemäß §10 Abs. 3 BauGB ortsüblich bekannt gemacht. Mit dieser Bekanntmachung tritt der Bebauungsplan in Kraft.
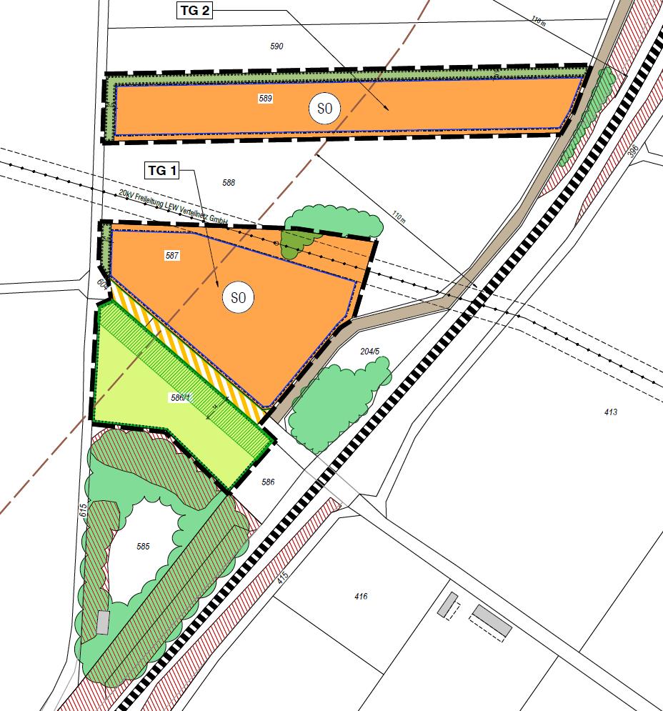
Der räumliche Geltungsbereich des Bebauungsplanes umfass die Flurnummer 587, 589, und 586/1 und eine Teilfläche der Flurnummer 604 der Gemarkung Fleinhausen. Der Geltungsbereich ergibt sich aus dem Lageplan, der Bestandteil dieser Bekanntmachung ist.
Der Bebauungsplan wird mit der Begründung einschließlich Umweltbericht und der zusammenfassenden Erklärung über die Art und Weise, wie die Umweltbelange und die Ergebnisse der Öffentlichkeits- und Behördenbeteiligung in dem Bebauungsplan berücksichtigt wurden und über die Gründe, aus denen der Plan nach Abwägung mit den geprüften, in Betracht kommenden anderweitigen Planungsmöglichkeiten gewählt wurde, vom Tag der Veröffentlichung dieser Bekanntmachung an, im Rathaus der Marktgemeinde Dinkelscherben, Augsburger Straße 4-6, 86424 Dinkelscherben bereit gehalten. Jedermann kann den Bebauungsplan während der allgemeinen Dienstzeiten einsehen und über dessen Inhalt Auskunft verlangen.
Allgemeine Dienstzeiten:
|
Montag bis Freitag: |
8:00 Uhr bis 12:00 Uhr |
|
Donnerstag: |
15:00 Uhr bis 18:00 Uhr |
Der in Kraft getretene Bebauungsplan wird gemäß § 10a Abs. 2 BauGB ab dem Tag dieser Bekanntmachung zusätzlich auf der Internetseite der Marktgemeinde Dinkelscherben unter www.dinkelscherben.info unter der Rubrik Bauleitplanung eingestellt und zugänglich gemacht.
Auf die Voraussetzungen für die Geltendmachung der Verletzung von Verfahrens- und Form-vorschriften und von Mängeln der Abwägung sowie die Rechtsfolgen des § 215 Abs. 1 BauGB wird hingewiesen.
Unbeachtlich werden demnach:
- eine nach § 214 Abs. 1 Satz 1 Nr. 1 bis 3 BauGB beachtliche Verletzung der dort bezeichneten Verfahrens- und Formvorschriften
- eine unter Berücksichtigung des § 214 Abs. 2 BauGB beachtliche Verletzung der Vorschriften über das Verhältnis des Bebauungsplans und des Flächennutzungsplans,
- nach § 214 Abs. 3 Satz 2 BauGB beachtliche Mängel des Abwägungsvorgangs und
- nach § 214 Abs. 2a im beschleunigten Verfahren beachtliche Fehler,
wenn sie nicht innerhalb eines Jahres seit Bekanntmachung des Bebauungsplans schriftlich gegenüber der Marktgemeinde Dinkelscherben geltend gemacht worden sind; der Sachverhalt, der die Verletzung oder den Mangel begründen soll, ist darzulegen.
Außerdem wird auf die Vorschriften des § 44 Abs. 3 Satz 1 und 2 sowie Abs. 4 BauGB hingewiesen. Danach erlöschen Entschädigungsansprüche für nach den §§ 39 bis 42 BauGB eingetretene Vermögensnachteile, wenn nicht innerhalb von drei Jahren nach Ablauf des Kalenderjahres, in dem die Vermögensnachteile eingetreten sind, die Fälligkeit des Anspruches herbeigeführt wird.

Dinkelscherben, den 22.07.2021
Edgar Kalb
- Bürgermeister